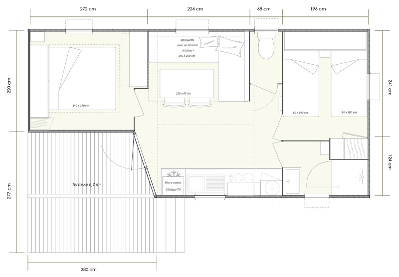
Salon Séjour Salon indépendant
Canapé avec couchage 2 personnes (130 x 200 cm) et coffres de rangement
Table basse
Table repas à rallonge
4 chaises confortables revêtues de polyvinyle
Meuble TV avec rangements fermés
Meuble d’entrée avec étagères et rangements chaussures
Convecteur 1000 W
Voilages |
Prix à partir de 28 128 €
Cuisine équipée Meubles hauts suspendus
Plaque 4 feux gaz
Hotte aspirante
Combi réfrigérateur- congélateur
Pré-équipement lave-vaisselle
Nombreux rangements : tiroirs, casseroliers, meubles bas et hauts, rack à verres
Tiroirs et portes de meubles avec amortisseurs type « Habitat »
|
Chambre principale Dressing
Lit 140 x 190 cm
Dressing avec penderie et nombreux rangements
Emplacement lit bébé
Convecteur 500 W
Combistore occultant/ moustiquaire
Appliques
|
Chambres invités Couchages modulables
Chambre spacieuse avec 2 lits jumeaux de 80 x 190 cm ou un grand lit de 140 x 190 cm
Petit dressing, rangements, Meubles de rangement au-dessus du lit
Convecteur 500 W
Combistores occultant/ moustiquaire
Appliques
|
Salle d’eau Douche spacieuse
Très grande douche de 80 x 100 cm
Meuble vasque avec rangements
Convecteur 500 W
Porte-serviettes
WC séparés de la salle d’eau
Meuble de rangement dans WC
Stores vénitiens en alu sur fenêtres salle d’eau et WC
|
Options idéales
Volets roulants
Four électrique
Micro-ondes
Lave-vaisselle
Lave-linge
Matelas qualité Bultex
Lit 160 x 200 cm
Lits gigognes ou lit transversal pour un gain de place ou de couchages
Chauffeuse, etc.
|